本文へスキップ

建築よろず相談

TEL. 090-5548-7520

〒181-0001 東京都三鷹市井の頭3丁目12番11号

よろずWEB相談HEADLINE

No. 1152 土台に計6カ所も穴を開けられているが?

 相談概要 [氏名] K.M
[相談内容] 注文住宅の瑕疵
[相談建物所在地] 東京都小平市
[職業] 会社員
[年齢] 38
[男性] on
[構造] 木造(在来工法)
[引渡し年月日] 西暦    2007年 03月 25日
[何階建て] 2
[延べ面積m2]
[延べ面積坪] 24
[工事請負金額] 1600
[設計監理料] 0
[様態] 注文建築
[施工者] 大工(工務店)
[設計者を選んだのは] 自分で選んだ。
[監理者を選んだのは] −
[確認申請書は本来建築主が出すと説明を?] 受けた。
[18確認申請の為の委任しましたか?] した。
[確認申請書お持ちですか?] 有る。
[検査済証は有りますか?] −
[設計図面は何枚もらいましたか?] 3
[工事着工まで設計の打ち合わせは何回しましたか?] 4
[施工者名] K建設
[販売会社名]
[設計者名]
[監理者名]
 相談内容 [現象]
現在新築工事中で棟上げ後2週間強で防水シートが貼られたところです。瑕疵部は洗面(2カ所)、洗濯機(1カ所)、キッチン(2カ所)、2階便所(1カ所)の給湯管及び水道管を壁から取り出すために、土台に計6カ所も穴を開けられている箇所についてです。

土台105角に対して27φの穴が土台上部から宅内に向かって斜めトンネル状に開けられており、その穴に管が床下から壁内に既に通されております。床板は貼られておりません。
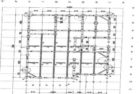
※1 画像と土台伏せ図(○囲み矢印部が瑕疵)を送付いたします。

[業者の見解]
基本的に工務店の水道屋に対する指示ミスと認めた上で以下の対策を提案されています。
既設管撤去、穴は同質材(ヒバ)を穴に併せて削りだし根太ボンドを用いて埋め戻し。
土台に平行させて105x27の同質材にてN釘で抱き合わせ固定後、欠損土台にはケミカルアンカーで基礎に追加固定する。
補強に用いた材には防蟻処理液を塗布する。配管は床下から垂直に床上へ取り出し、気密ボンドで穴回りは埋める。

[相談内容]
最悪は全てやり直しも辞さないと思っていますが、工期延長や工務店の費用増大による別瑕疵の発生等、悪影響が考えられますので最善の改修ですませたいと考えております。
業者の提案してきた方法で過不足又は全く異なる視点からの改修方法が有ればご教授下さい。









 yorozuの感想 信頼できる人々の手によって支えられていると感じています。他の相談ページにも投稿しておりますが自由投稿なので回答の精度については不安要素が残ります。
アドバイザー 
木津田 秀雄 解説員の木津田です。

 まず、このような配管の方法は、良いか悪いかは別にしてごく一般的に行われています。
土台の強度が低下することは確かですが、その土台の直近に耐力壁があるなどしていない場合には、土台の欠損が原因で、家の構造強度に支障が出ることはないと思います。

 写真では一ヶ所、土台継ぎ手の雄側の根元に穴が開けられている部分がありますが、この位置はちょっと気になります。
ただこの位置に土台のアンカーボルトが見えない(柱があるから取り付けていないのかもしれませんが)ことの方が心配です。

 この工務店に、他の家はいつもどのように施工しているのか聞いてみて下さい。根太を土台に敷かずに、直接床下地を土台に敷き込む工法の場合、水道配管の逃げるスペースがなくなります。また電気配線も同様に梁を貫通して配線することがあります。このような欠損を瑕疵として補修させると言うことであれば、その点も事前に工務店に確認しておかないとまた同じこと(穴を塞ぐ補修)をすることになると思います。

 木造の建物では、全ての構造材がギリギリの耐力で組み立てられているのではありません。
土台の欠損にしても、絶対に避けたい部分と許容できる部分があります。
梁も同様ですがどちらかと言えば梁の欠損(特に下側)の方が構造への影響は大きくなります。

 工務店の言う補修で十分かどうかは、分かりませんが、そこまでする必要があるのだろうか、また先に書いたように、電気の配線をどうするつもりなのだろうか、という疑問があります。
 コメンテーター 
清水 煬二 コメンテーターの清水です。

土台は、耐力壁(筋交いなどの付いた壁)の付近は台風や地震のときに、引っ張り上げられる力が働くことがあります。
そのため、アンカーボルトは耐力壁の近くに必要ですし、その部分の土台の耐力が必要です。木津田解説員がコメントしているように、力がほとんど掛からない土台部分もありますので、今回の断面欠損が深刻なものではない場合も考えられるということです。

本当に補強が必要な場合、27ミリの厚さの間柱を釘打ちの補強で大丈夫だとは思えません。
根太を使わない、または土台や梁の高さに床板をのせる工法は、最近の現場では耐震性を増すメリットがあり木造軸組み工法でも主流になっていますが、土台や梁を欠くことは、できるだけ最小限にすべきですし、床からの立ち上げや配管スペースを設けることで対応も可能です。

文面や写真だけでは構造全体の状況がわかりませんので、ご心配の場合は、お近くの第三者の建築士に相談された方が良いでしょう。
 事務局から 
  荻原 幸雄  図面の特記事項も含めてみませんとなんともいえませんが、構造合板の根太レス工法だと思いますが、その掛かりを避けて土台に穴あけをしたのでしょう。

土台を欠く場合は多いとは思いますが、原則、禁止にすべきだと思いますが、絶対駄目というものでもありません。
力学を考慮して総合的な判断が必要です。1階だけ(土台、柱、金物、壁、構造材等の判断材料と)でなく2階の荷重や柱、壁、梁なども考慮しないと総合的な判断はできません。

設計段階でこのような配慮は必要ですが、床暖房、電気配線等も柱、梁を貫通する場合もあります。
それらは絶対駄目ということは現実的に難しく、応力のなるべく少ない部位に配置し、PS等を設けて配管スペースを確保することが大切です。
これをするには必要空間が狭くなるという弱点はありますが、構造をいじめなくて済むので、このような設計と施工をすべきでしょう。

総合的な判断はこれを設計した建築士に依頼してください。その人が熟知しているのですから・・・。
相談者お礼状 
 相談者お礼状
 その後  
目次に戻る

バナースペース

建築よろず相談

〒181-0001
東京都三鷹市井の頭3丁目12番11号

TEL 090-5548-7520